
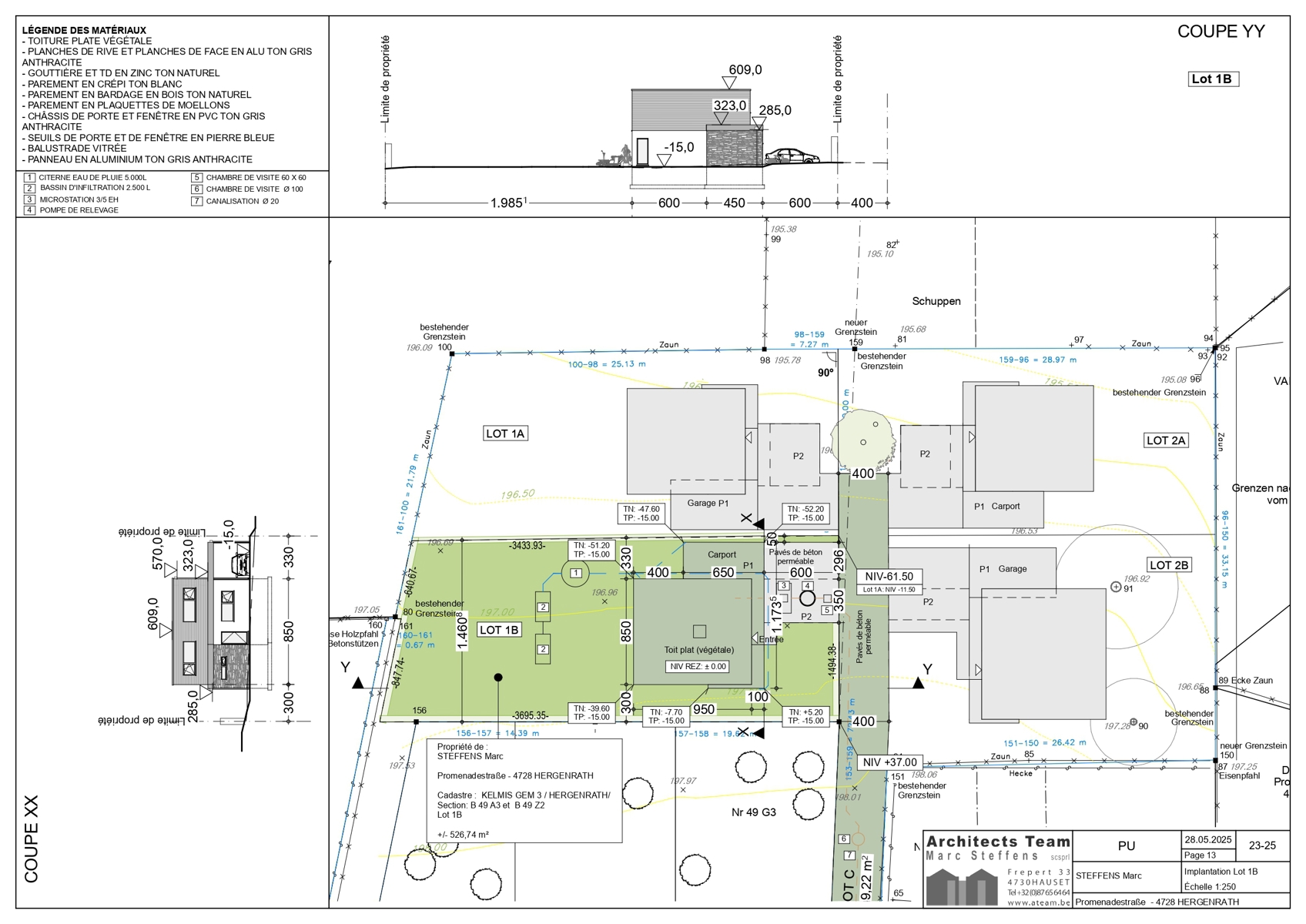
LOT 1B - Nous proposons à la vente un ou deux terrains à bâtir attrayants et idéalement situés à Hergenrath, au sud d’Aix-la-Chapelle. Les terrains sont en deuxième ligne, accessibles via une voie d’accès privée en cul-de-sac – un cadre idéal pour ceux qui recherchent calme et intimité. Il n’y a aucun passage de véhicules, ce qui garantit un cadre de vie paisible et sécurisé, notamment pour les familles. D’une superficie de 553 m² à 585 m², ces parcelles conviennent parfaitement à la construction de maisons unifamiliales. Un permis de bâtir valable est inclus dans le prix et sera remis à l’acheteur à la signature. Les terrains sont donc immédiatement constructibles. Il est également possible de réunir les deux parcelles pour créer un grand domaine. Hergenrath séduit par sa situation proche de la nature, à deux pas de la forêt d’Aix-la-Chapelle, tout en offrant une bonne accessibilité, notamment grâce à sa gare. Depuis le 01/01/2025, les droits d’enregistrement en Belgique sont réduits à 3 %, sous certaines conditions (notamment en cas d’occupation propre). À défaut, le taux standard de 12,5 % s’applique. Le prix affiché s’entend hors frais. Des frais d’infrastructure à hauteur de 6.000 € HTVA par terrain sont également à prévoir. Une belle opportunité pour construire votre maison dans un cadre verdoyant, calme et très bien situé. Prix et informations supplémentaires sur demande.
Adresse :
Promenadestrasse - 4728 Hergenrath
Référence | 7205740 |
---|---|
Catégorie | Terrain à bâtir |
Surface du terrain | 527 m² |
Disponibilité | immédiatement |
Jugement en cours | Non |
---|---|
Permis de bâtir | Oui |
Permis de lotir | Oui |
Droit de préemption | Non |
Affectation urbanistique | zone d'habitat |
Profondeur terrain | 36 |
---|---|
Largeur terrain | 14.6 |
Égouts | Oui |
---|---|
Électricité | Oui |
Eau | Oui |
Type d'environnement | campagne |
---|---|
Type d'environnement 2 | calme |
Risque d'inondation (type innondation) | pas situé en zone inondable |
Risque d'inondation 2023 (type innondation) | Classe A (aucune chance) |