
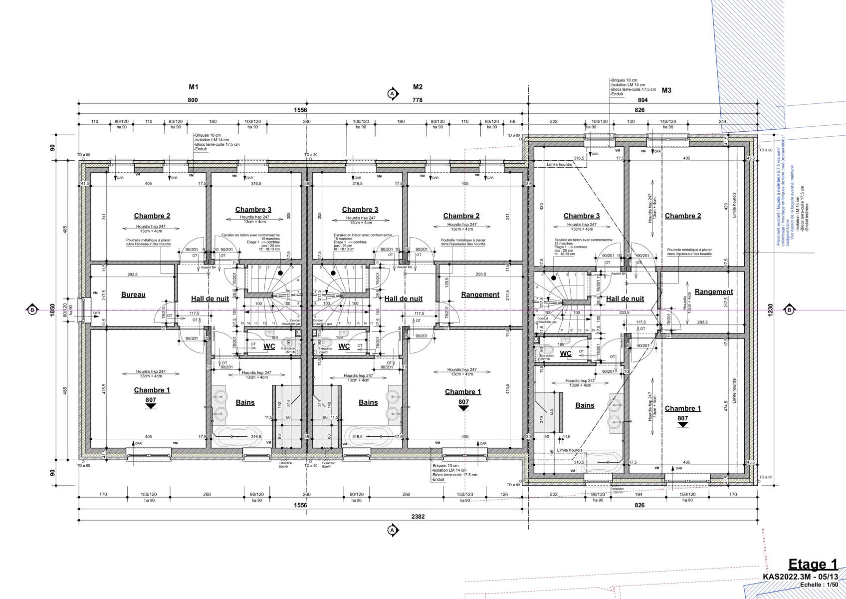
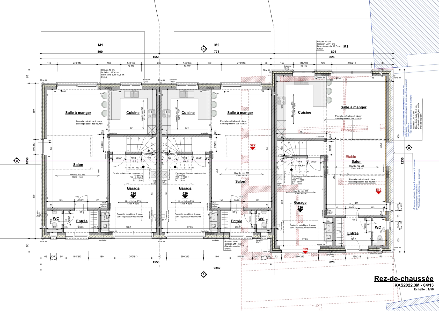
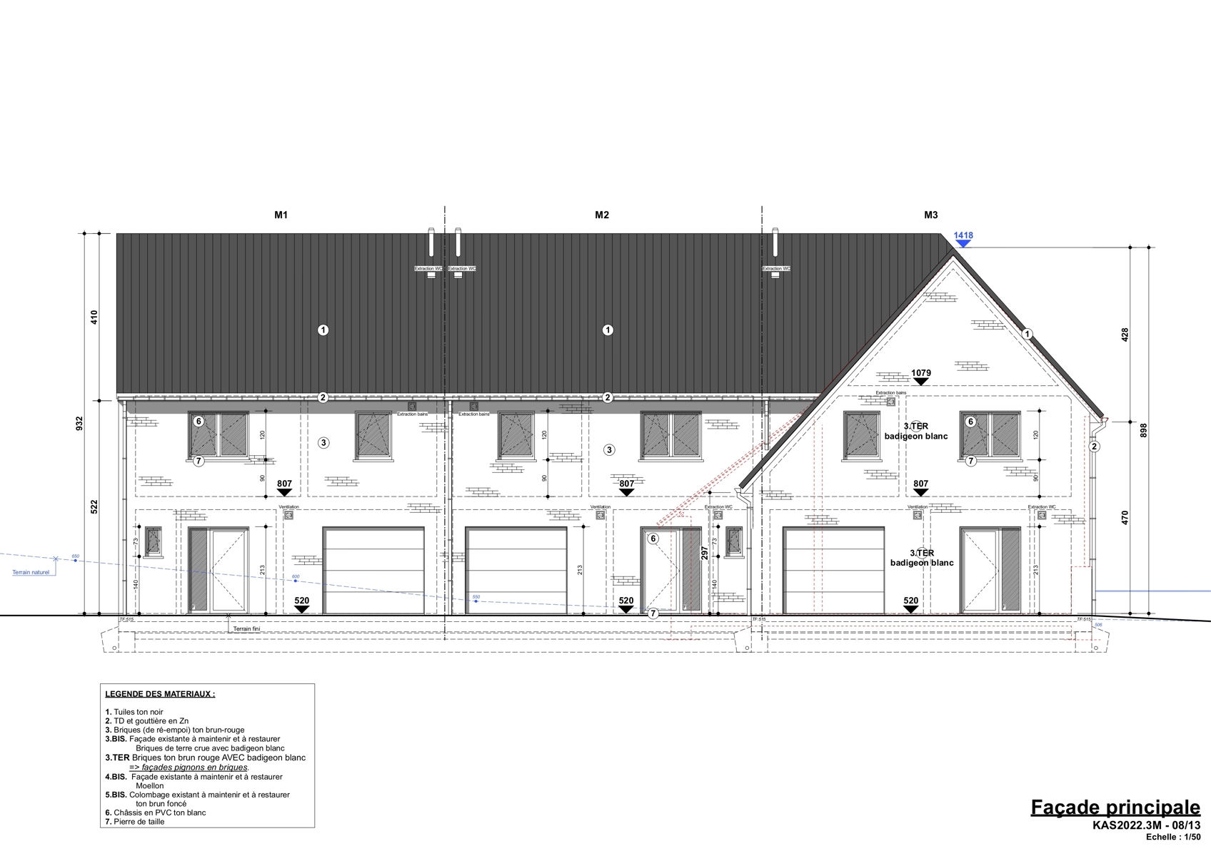
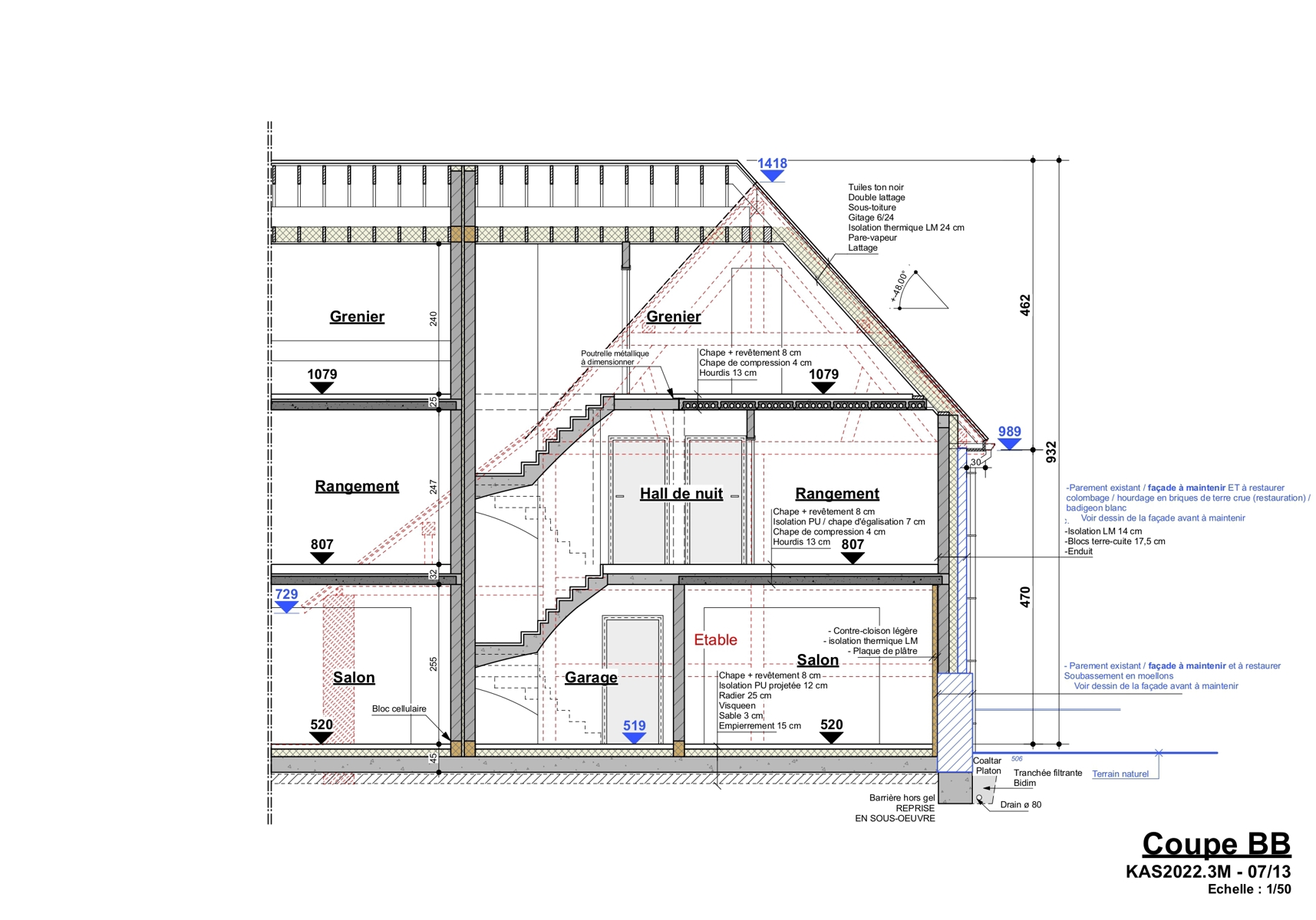
CODIA präsentiert Ihnen dieses neue Haus im Dorf Moresnet. Das Haus bietet einen idealen Lebensraum mit einem hellen Wohnzimmer, das eine offene Küche und einen direkten Zugang zu einer großen Terrasse von 20 m² (Westausrichtung) umfasst. Es verfügt über drei Schlafzimmer, die ausreichend Platz für die ganze Familie bieten. Ein Badezimmer mit Dusche, zwei separate WCs, ein Hauswirtschaftsraum im Garagenbereich, ein eventuell ausbaubarer Dachboden und eine Garage vervollständigen diese schöne Immobilie. Zu den technischen Merkmalen und modernen Ausstattungen gehören PVC-Fensterrahmen mit Dreifachverglasung, elektrische Rollläden an jedem Fenster. Der Komfort wird durch eine Fußbodenheizung mit einer Gas-Kondensationsheizung, einen thermodynamischen Boiler und eine Lüftungsanlage für eine optimale Luftqualität gewährleistet. Das Haus ist zudem mit Anschlüssen für Wasser, Strom, ein unterirdisches Propangas-Tank und Internet-Telefon ausgestattet. Der Preis (ohne Sanitärausstattung, Bodenbeläge, Innentüren und Malerarbeiten): 359.422 € ohne Gebühren. Der Preis (schlüsselfertig mit Ausstattungen): 398.877 € ohne Gebühren. Unter dem Mehrwertsteuersatz von 21 % mit der Möglichkeit einer 6 % MwSt. unter bestimmten Bedingungen. Die angegebenen Informationen dienen nur als Hinweis und sind unverbindlich. Diese Anzeige stellt kein Angebot dar.
Adresse :
Rue du Village 74 Briefkasten A - 4850 Moresnet
Referenz | 6377307 |
---|---|
Kategorie | Haus |
Möbliert | Nein |
Anzahl Zimmer | 3 |
Anzahl Badezimmer | 1 |
Garten | Ja |
GartenFläche | 120 m² |
Garage | Ja |
Terrasse | Ja |
Parkplatz | Ja |
Wohnfläche | 163 m² |
Grundstücksfläche | 228 m² |
Verfügbarkeit | sofort |
Baujahr (Jahr) | 2024 |
---|---|
Garage (Anzahl) | 1 |
Parkplatz (innen) (ja/nein) | Ja |
Parkplatz (außen) (ja/nein) | Ja |
Innenstellplatz (Anzahl) | 1 |
Außenstellplatz (Anzahl) | 1 |
Dachtyp (Typ) | Schrägdach |
Etagen (Anzahl) | 2 |
---|
Zugang für Behinderte (ja/nein) | Ja |
---|---|
Heizung (Individuel/Kollektiv) | |
Aufzug (ja/nein) | Nein |
Doppelverglasung (ja/nein) | Ja |
Heizung (Typ) | Gas |
Küche (Typ) | nicht ausgestattet |
Badezimmer (Typ) | Dusche und Badewanne |
Doppelverglasung (Typ) | Wärmeisolierung |
Ausrichtung des Gebäudes ((hinten)) | Westen |
---|---|
Umfeld (Typ) | |
Ausrichtung des Gebäudes (vordere Außenwand) | Osten |
Flooding area (flood type) | potential flood area |
Flooding type 2023 (flood type) | Class B (small chance under climate change af.2050) |
Breite - Straßenfront (Breite) | 7.78 |
---|---|
Bebaute Fläche (Bebaute Fläche des Hauptgebäudes) | 82 |
Terrasse 2 (Fläche) | 20 |
Toiletten (Anzahl) | 2 |
Duschraum (Anzahl) | 1 |
Schlafzimmer 1 (Fläche (m²)) | 16.8 m² |
Schlafzimmmer 2 (Fläche (m²)) | 12.6 m² |
Schlafzimmer 3 (Fläche (m²)) | 9.64 m² |
Breite der vorderen Außenwand (Breite) | 7.78 |
Terrasse (Anzahl) | 1 |
Wohnzimmer (Fläche) | 32.4 |
Küche (Fläche (m²)) | 10.2 m² |
Terrasse 1 (Ausrichtung) | Westen |
Rollladen (ja/nein) | Ja |
---|
Schwimmbad (ja/nein) | Nein |
---|
Mwst eingeschlossen (ja/nein) | Ja |
---|
Kanalisation (ja/nein) | Ja |
---|---|
Elektrizität (ja/nein) | Ja |
Kabelfernsehen (ja/nein) | Ja |
Gas (ja/nein) | Ja |
Telefonkabel (ja/nein) | Ja |
Wasser (ja/nein) | Ja |
Telefonzentrale (ja/nein) | Ja |
---|---|
Fensterrahmen (Typ) | PVC |
Bauerlaubnis (ja/nein) | Ja |
---|---|
Gebrauch des Gebäudes (Typ) | privat - wohnen |
Grundstück (Bestimmung) |
Terrasse 1 (Fläche) | 20 |
---|
Elektrizitätszertifikat (ja/nein) | ja, konform |
---|
Speicher (ja/nein) | Ja |
---|
PEB (Klasse) | A |
---|
Steuer auf Gebäude (percentage (%)) | 63299 |
---|