Wohnung - zu verkaufen - 4730 Raeren 435.000 €  Exklusive Kosten

Wohnung - zu kaufen - 4730 Raeren
2 2 117 m² 1 PEB : A

Beschreibung

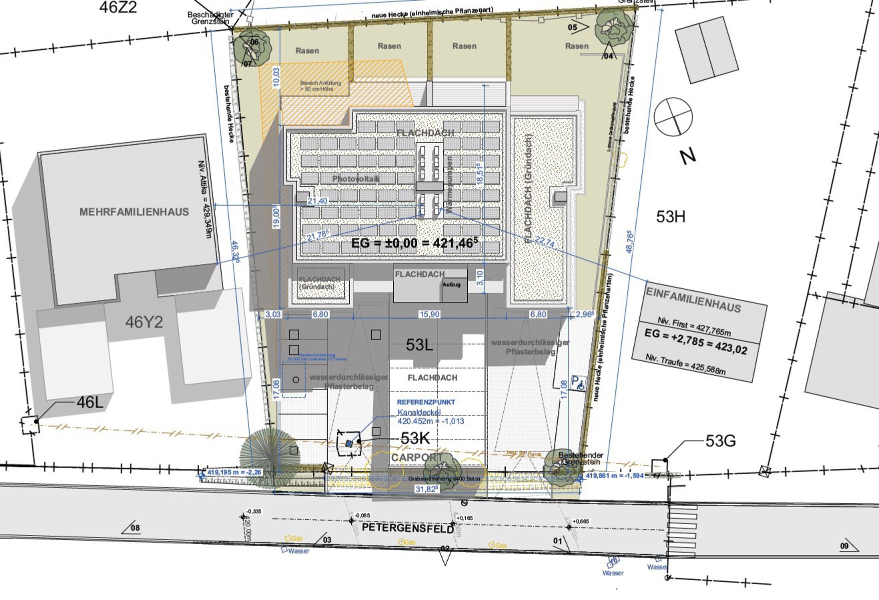
Neubauprojekt in Raeren-Petergensfeld – modernes Wohnen in ruhiger Grenzlage

In begehrter Lage von Raeren-Petergensfeld, unmittelbar an der Grenze zu Roetgen, entsteht ein hochwertiges Neubauprojekt mit zehn stilvollen Eigentumswohnungen. Die moderne Architektur vereint durchdachte Grundrisse mit zeitgemäßer Technik – ideal für alle, die naturnah leben und gleichzeitig von der Nähe zu Aachen profitieren möchten.

Alle Wohnungen verfügen über eine energieeffiziente Ausstattung mit PEB A, Fußbodenheizung über Wärmepumpe und einer gemeinschaftlichen Photovoltaikanlage. Carports sind bereits im Kaufpreis enthalten. Das Gebäude ist südlich ausgerichtet und bietet somit helle, sonnendurchflutete Wohnräume. Die Erdgeschosswohnungen verfügen über einen privaten Garten, während die Einheiten im Obergeschoss großzügige Terrassen mit Blick ins Grüne bieten.

Der Verkauf erfolgt im Rahmen der belgischen Loi Breyne mit Anwendung der Mehrwertsteuer auf den Infrastrukturbereich.
Die Vermarktung erfolgt mit einer Käuferprovision von 3 % zzgl. MwSt, d. h. 3,63 % inkl. MwSt auf den Kaufpreis.

Ein durch und durch modernes Wohnkonzept für Paare, Familien oder Berufspendler, die auf Qualität, Nachhaltigkeit und Wohnkomfort setzen.

Jetzt vormerken und weitere Informationen erhalten unter info@codia-immo.be oder +32 87 60 28 60.
www.codia-immo.be

Adresse :

Petergensfeld 80 - 4730 Raeren

Dokumente

Allgemein

Referenz 6815387
Kategorie Wohnung
Anzahl Zimmer 2
Anzahl Badezimmer 1
Terrasse Ja
Parkplatz Ja
Wohnfläche 117 m²
Verfügbarkeit nach notarieller Beurkundung

Gebäude

Baujahr (Jahr) 2027
Parkplatz (außen) (ja/nein) Ja
Außenstellplatz (Anzahl) 1

Name, Kategorie & Lage

Floor 1
Etagen (Anzahl) 2

Verschiedenes

Waschküche (ja/nein) Ja

Grundausstattung

Heizung (Individuel/Kollektiv) individuell
Aufzug (ja/nein) Ja
Doppelverglasung (ja/nein) Ja
Heizung (Typ) Heißluftpumpe
Aufzug (Typ) Person
Doppelverglasung (Typ) Wärme-und Schallisolierung
Videophon (ja/nein) Ja

Allgemeine Zahlen

Toiletten (Anzahl) 2
Duschraum (Anzahl) 1
Schlafzimmer 1 (Fläche (m²)) 15.44 m²
Schlafzimmmer 2 (Fläche (m²)) 14.5 m²
Terrasse (Anzahl) 1
Wohnzimmer (Fläche) 55.47
Badezimmer (Fläche) 8.67
Terrasse 1 (Ausrichtung) Süden
Surface balcon 1 19.15 m²

Outdoor-Ausrüstung

Schwimmbad (ja/nein) Nein

Lasten und Erträge

Mwst eingeschlossen (ja/nein) Ja

Juristischer Bereich

Gerichtsverfahren (ja/nein) Nein
Bauerlaubnis (ja/nein) Ja
Parzellierungserlaubnis (ja/nein) Nein
Vorkaufsrecht (ja/nein) Nein
Grundstück (Bestimmung)

Anschlüsse

Kanalisation (ja/nein) Ja
Elektrizität (ja/nein) Ja
Telefonkabel (ja/nein) Ja
Wasser (ja/nein) Ja

Geländeangaben

Umfeld (Typ)
Umfeld (Typ) ländliches Gebiet
Ausrichtung des Gebäudes (vordere Außenwand) Norden
Flooding area (flood type) not located in flood area
Flooding type 2023 (flood type) Class A (no chance)

Hauptmerkmale

Terrasse 1 (Fläche) 19.15

Kataster

Katastereinkommen (€) (Betrag) 1 €

Anzahlung (Details)

Energiezertifikate

PEB (Klasse) A
Ihr Makler
Denis Steffens
E-Mail Tel.
Kontakt aufnehmen für dieses Objekt : 6815387

* Pflichtfelder

Selection of points of interest

Ähnliche Immobilien

Cookie-Einstellungen

Der Schutz Ihrer personenbezogenen Daten ist uns wichtig. Aus diesem Grund beschreiben wir im Folgenden die verschiedenen Dienste und Funktionen der Website, die Cookies verwenden, und lassen Sie entscheiden, welche Cookies Sie zulassen oder ablehnen möchten.

Bitte beachten Sie jedoch, dass das Blockieren bestimmter Arten von Cookies Ihr Surferlebnis auf unserer Website sowie die verfügbaren Funktionen beeinträchtigen kann.

Wir verwenden obligatorische funktionale Cookies, um das ordnungsgemäße Funktionieren der Website zu gewährleisten. Sie sind beispielsweise notwendig, um das Ergebnis einer Suche zu finden oder die Sprachauswahl zu speichern.

Einige Funktionen wie die Anzeige von Videos oder Karten werden über externe Komponenten bereitgestellt, die von Partnern wie YouTube oder Google entwickelt wurden. Bestimmte Komponenten verwenden Cookies, die es diesen Dritten wahrscheinlich ermöglichen, das Verhalten von Internetnutzern zu verfolgen, um beispielsweise gezielte Werbung durchzuführen. Die Aktivierung dieser Funktionen und der damit verbundenen Cookies unterliegt daher Ihrer Zustimmung.