
Neubauprojekt in Raeren-Petergensfeld – modernes Wohnen in ruhiger Grenzlage
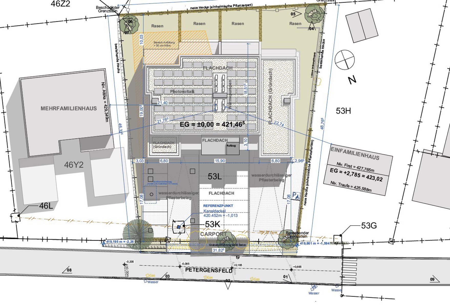
In begehrter Lage von Raeren-Petergensfeld, unmittelbar an der Grenze zu Roetgen, entsteht ein hochwertiges Neubauprojekt mit zehn stilvollen Eigentumswohnungen. Die moderne Architektur vereint durchdachte Grundrisse mit zeitgemäßer Technik – ideal für alle, die naturnah leben und gleichzeitig von der Nähe zu Aachen profitieren möchten.
Alle Wohnungen verfügen über eine energieeffiziente Ausstattung mit PEB A, Fußbodenheizung über Wärmepumpe und einer gemeinschaftlichen Photovoltaikanlage. Carports sind bereits im Kaufpreis enthalten. Das Gebäude ist südlich ausgerichtet und bietet somit helle, sonnendurchflutete Wohnräume. Die Erdgeschosswohnungen verfügen über einen privaten Garten, während die Einheiten im Obergeschoss großzügige Terrassen mit Blick ins Grüne bieten.
Der Verkauf erfolgt im Rahmen der belgischen Loi Breyne mit Anwendung der Mehrwertsteuer auf den Infrastrukturbereich.
Die Vermarktung erfolgt mit einer Käuferprovision von 3 % zzgl. MwSt, d. h. 3,63 % inkl. MwSt auf den Kaufpreis.
Ein durch und durch modernes Wohnkonzept für Paare, Familien oder Berufspendler, die auf Qualität, Nachhaltigkeit und Wohnkomfort setzen.
Jetzt vormerken und weitere Informationen erhalten unter info@codia-immo.be oder +32 87 60 28 60.
www.codia-immo.be
Adresse :
Petergensfeld 80 - 4730 Raeren
Referenz | 6815381 |
---|---|
Kategorie | Wohnung |
Anzahl Zimmer | 2 |
Anzahl Badezimmer | 1 |
Garten | Ja |
GartenFläche | 202 m² |
Terrasse | Ja |
Parkplatz | Ja |
Wohnfläche | 104 m² |
Verfügbarkeit | nach notarieller Beurkundung |
Baujahr (Jahr) | 2027 |
---|---|
Parkplatz (außen) (ja/nein) | Ja |
Außenstellplatz (Anzahl) | 1 |
Floor | 0 |
---|---|
Etagen (Anzahl) | 2 |
Waschküche (ja/nein) | Ja |
---|
Heizung (Individuel/Kollektiv) | individuell |
---|---|
Aufzug (ja/nein) | Ja |
Doppelverglasung (ja/nein) | Ja |
Heizung (Typ) | Heißluftpumpe |
Aufzug (Typ) | Person |
Doppelverglasung (Typ) | Wärme-und Schallisolierung |
Videophon (ja/nein) | Ja |
Toiletten (Anzahl) | 2 |
---|---|
Duschraum (Anzahl) | 1 |
Schlafzimmer 1 (Fläche (m²)) | 15.15 m² |
Schlafzimmmer 2 (Fläche (m²)) | 12.44 m² |
Terrasse (Anzahl) | 1 |
Wohnzimmer (Fläche) | 42.86 |
Badezimmer (Fläche) | 10 |
Terrasse 1 (Ausrichtung) | Süden |
Surface balcon 1 | 17.37 m² |
Schwimmbad (ja/nein) | Nein |
---|
Mwst eingeschlossen (ja/nein) | Ja |
---|
Gerichtsverfahren (ja/nein) | Nein |
---|---|
Bauerlaubnis (ja/nein) | Ja |
Parzellierungserlaubnis (ja/nein) | Nein |
Vorkaufsrecht (ja/nein) | Nein |
Grundstück (Bestimmung) |
Kanalisation (ja/nein) | Ja |
---|---|
Elektrizität (ja/nein) | Ja |
Telefonkabel (ja/nein) | Ja |
Wasser (ja/nein) | Ja |
Umfeld (Typ) | |
---|---|
Umfeld (Typ) | ländliches Gebiet |
Ausrichtung des Gebäudes (vordere Außenwand) | Norden |
Flooding area (flood type) | not located in flood area |
Flooding type 2023 (flood type) | Class A (no chance) |
Terrasse 1 (Fläche) | 17 |
---|
Katastereinkommen (€) (Betrag) | 1 € |
---|
Anzahlung (Details) |
---|
PEB (Klasse) | A |
---|